Reserviert! Klein aber fein! Zuverlässige Kapitalanlage nahe Chemnitz!
09235 Burkhardtsdorf, Etagenwohnung zum Kauf
Kontaktdaten
-
NameHerr Joern Wendler
-
FirmaHypoconnect - Die Immobilienmakler GmbH & Co KG
-
AdresseWilhelm-Weber-Str. 18
09131 Chemnitz -
E-Mail Zentrale
-
Tel. Zentrale
-
Fax+49 371 2625644
Objektdaten
-
Objekt IDA2815
-
ObjekttypenEtagenwohnung, Wohnung
-
AdresseAmselring 44
09235 Burkhardtsdorf -
Wohnfläche ca.34,93 m²
-
Nutzfläche ca.30 m²
-
Zimmer2
-
Schlafzimmer0,0
-
Badezimmer0,0
-
HeizungsartZentralheizung
-
Wesentlicher EnergieträgerGas
-
Baujahr1998
-
Statusvermietet
-
Stellplatz1 Stellplatz
-
Hausgeld256 EUR
-
KäuferprovisionEUR 2.380,- incl. MwSt.
-
Mieteinnahmen (Ist)235,00 EUR pro Monat
-
Kaufpreis35.000 EUR
Ausstattung / Merkmale
- Außenstellplatz
- Keller
- Neubau
Energieausweis
-
EnergieausweistypVerbrauchsausweis
-
Ausstellungsdatum20.08.2017
-
Gültig bis20.08.2027
-
GebäudeartWohngebäude
-
Baujahr lt. Energieausweis1998
-
PrimärenergieträgerGas
-
Endenergieverbrauch109,00 kWh/(m²·a)
-
Warmwasser enthaltenja
-
EnergieeffizienzklasseD
Objektbeschreibung
Beschreibung
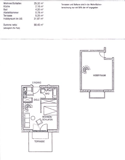
Angeboten wird eine kleine Erdgeschosswohnung in einem 1996 errichteten, sehr beliebten Wohngebiet nahe Chemnitz. Die Wohnung verfügt über einen kombinierten Wohn- und Schlafraum (c.30 m²) im Erdgeschoss sowie einen ca. 30 m² großen Hobbyraum im Untergeschoss. Küche und Bad sind vom Flur aus erreichbar. Direkt vor dem Wohnzimmer befindet sich die zur Wohnung gehörige Terrasse. Ein Kellerabteil ist der Wohneinheit ebenfalls zugeordnet.
Seit 2008 ist die Wohnung an den derzeitgen Mieter vermietet. Die Miete beträgt seit 01.01.2023 EUR 2.580,- pro Jahr.
Der zur Wohnung gehörende Außenstellplatz wird separat mit einem Kaufpreis von EUR 1.500,- berechnet und erwirtschaftet eine Miete von EUR 240,- pro Jahr.
Das Hausgeld beträgt laut Wirtschaftsplan EUR 156,-/Monat. Darin sind EUR 40,44 / Monat nicht umlegbare Kosten und Zuführung zur Rücklage enthalten.
Ausstattung
Die 1996 erbaute Wohnanlage befindet sich in einem gepflegten Zustand. Im Haus sind 8 Mietparteien untergebracht. Alle verfügen über einen Balkon bzw. Terrasse und einen Stellplatz. Heizung und Warmwasseraufbereitung erfolgen zentral im Haus mittels Erdgas.
In Wohnzimmer und Hobbyraum ist Laminat verlegt, Bad und Küche besitzen einen Fliesenfußboden.
Lage
Burkhardtsdorf ist eine kleine Gemeinde ca. 20 Autominuten von Chemnitz entfernt. Durch den Ort verlaufen die Bundesstraßen B 95 und B 180. Daher ist eine sehr gute Verbindung in jede Richtung gewährleistet. Die Anschlussstelle der Autobahn A 4 ist nur wenige Kilometer entfernt. Das Wohngebiet liegt am Rand des Ortes an einer ruhigen Anliegerstraße. Öffentliche Verkehrsmittel, soziale Einrichtungen und Einkaufsmöglichkeiten sind im Ort vorhanden.
Die Position der Immobilie auf Google Maps ansehen (Link auf externe Website)





