Vielseitig nutzbare Büroetage in der Nähe des Technischen Rathauses!!
09111 Chemnitz, Büro/Praxis zur Miete
Kontaktdaten
-
NameHerr Joern Wendler
-
FirmaHypoconnect - Die Immobilienmakler GmbH & Co KG
-
AdresseWilhelm-Weber-Str. 18
09131 Chemnitz -
E-Mail Zentrale
-
Tel. Zentrale
-
Fax+49 371 2625644
Objektdaten
-
Objekt IDA2777
-
ObjekttypBüro/Praxis
-
AdresseDresdner Straße 38A
09111 Chemnitz -
Bürofläche ca.232,10 m²
-
Gesamtfläche ca.631,20 m²
-
Zimmer0,0
-
Schlafzimmer0,0
-
Badezimmer0,0
-
Baujahr1911
-
Kaltmiete4.734,00 EUR
-
Nebenkosten2.209,20 EUR
-
Warmmiete6.943,20 EUR
Ausstattung / Merkmale
- Altbau
- Außenstellplatz
Objektbeschreibung
Beschreibung
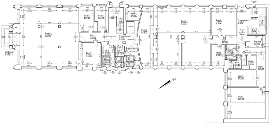
Angeboten wird die komplette untere Etage des Georg-Landgraf-Hauses im Areal "Sonnenbergterrassen". Im Erdgeschoss des repräsentativen Baus kann eine Fläche von insgesamt ca. 631m² angemietet werden. Der großzügige Hauptraum verfügt über ca. 150m² und ist sowohl über das Treppenhaus als auch über eine separate Freitreppe erreichbar. Zwei weitere Räume (24 m² und 31 m²) sowie die Toiletten befinden sich ebenfalls im vorderen Teil der Etage. Im hinteren Bereich finden wir einen weiteren teilbaren Seminar- oder Vortragsraum (ca. 150 m²) und mehrere Büroräume. Die Großfläche kann nach Ihren Bedürfnissen umgestaltet werden. Eine temporäre gastronomische Nutzung ist möglich. Auf dem Gelände können Stellplätze angemietet werden.
Ausstattung
Die Einheit ist mit einer strapazierfähigen Kunststoffbeschichtung versehen und komplett renoviert. Es sind im vorderen und im hinteren Teil jeweils getrennte Toiletten vorhanden. Der seitliche Eingang ist behindertengereicht ausgeführt. Umbauten können in Abhängigkeit von Zweck und Mietdauer vorgenommen werden. Der derzeitig angebotene Mietpreis bezieht sich auf eine Mindestmietdauer von 3 Jahren.
Lage
Die Immobilie liegt zentral an der Dresdner Straße in Chemnitz. In unmittelbarer Nähe befindet sich das Technische Rathaus. Der Hauptbahnhof ist fußläufig zu erreichen. Eine Haltestelle des Öffentlichen Personennahverkehrs ist ebenfalls vor dem Gelände platziert. Zum Chemnitzer Stadtzentrum sind es etwa 5 Minuten zu Fuß.
Die Position der Immobilie auf Google Maps ansehen (Link auf externe Website)









