Individuelles Wohnen … auch als WG geeignet!
09113 Chemnitz, Etagenwohnung zur Miete
Kontaktdaten
-
NameFrau Sandy Fischer
-
FirmaHypoconnect - Die Immobilienmakler GmbH & Co KG
-
AdresseWilhelm-Weber-Str. 18
09131 Chemnitz -
E-Mail Zentrale
-
Tel. Zentrale
-
Fax+49 371 2625644
Objektdaten
-
Objekt IDA2646
-
ObjekttypenEtagenwohnung, Wohnung
-
AdresseJosephinenplatz 8
09113 Chemnitz -
Etage3
-
Etagen im Haus4
-
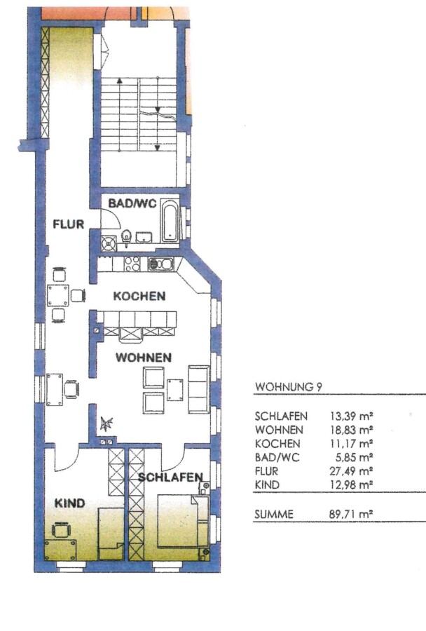
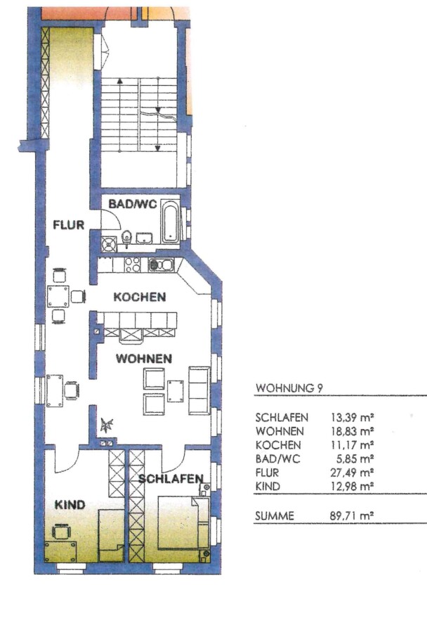
Wohnfläche ca.89,71 m²
-
Zimmer3
-
Schlafzimmer2
-
Wohn-Schlafzimmer1
-
Badezimmer1
-
HeizungsartZentralheizung
-
Wesentlicher EnergieträgerGas
-
Baujahr1900
-
Kaution840,00 EUR
-
Kaltmiete420,00 EUR
-
Nebenkosten250,00 EUR
-
Warmmiete670,00 EUR (Heizkosten enthalten)
Ausstattung / Merkmale
- Altbau
- Keller
- Laminatboden
Objektbeschreibung
Beschreibung
Großzügiges Wohnen Nähe Chemnitz-Fluss und Küchwald!
individueller Grundriss / 3.OG / offen gestaltete Kombi aus Wohnen und Küche ca. 30 m² / hell gefliestes Tageslichtbad mit Badewanne, WC, Waschtisch und Waschmaschinenanschluss / praktisches Schlafzimmer ca. 14 m²/ Kinderzimmer mit ca. 13 m² / großzügiger Flurbereich ca. 27 m² für die Dinge des Alltags und für große Kleiderschränke bestens geeignet / alle Zimmer sind mit einem neuwertigen PVC Fußbodenbelag ausgestattet / Kellerabteil / Gartennutzung möglich / PKW-Stellplätze sind vor dem Objekt vorhanden / alle Versorgungseinrichtungen (u.a. Edeka) fußläufig erreichbar /
Sonstige Informationen
Das Objekt steht unter Denkmalschutz, auf die Vorlage eines Energieausweises kann daher verzichtet werden.







